Rehau

Vinduer laget av REHAU Euro 70-profiler gir husets ytre et spesielt elegant uttrykk og passer inn i ethvert interiør.
![]() |
![]() |
Vindussystemet REHAU Euro 70 tilhører premiumklassen og oppfyller de høyeste tekniske og estetiske kravene innen kvalitetsbygg. REHAU Euro 70-profiler kombinerer eksklusivt design med innovative teknologier, krever minimalt vedlikehold og er ideelle i bruk.
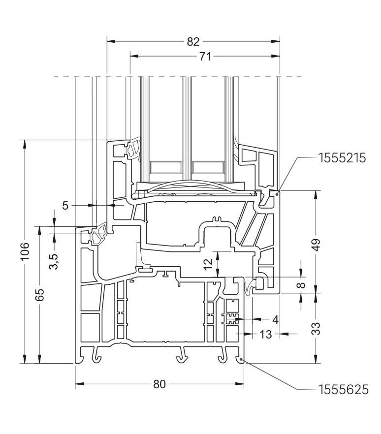
| Profilparametere: REHAU - EURO 70 | |
| Kammerer |
5 |
| Monteringsdybde |
70 mm |
| Varmetap |
1,3 W/m²K |
| Lydisolasjon | opptil 40 dB |
| Temperaturområde | fra -60 til +75 °C |
| Mulighet for installasjon av glasspakke med tykkelse |
# 24 / # 36 |
| Mulighet for laminering av profilen med dekorative folier | Ja |
| Antall tetningsnivåer |
2 |
| Motstand mot vindbelastning |
C5/B5 |
| Vannmotstand |
* |
| Luftgjennomtrengelighet |
4 |
| Akustiske egenskaper |
* |
|
Motstandsdyktighet mot kraftig regn |
E900 |
REHAU SYNEGO
Et vindu trenger ikke nødvendigvis å være rektangulært. Stort, lite, rektangulært eller avrundet – med profilsystemet REHAU SYNEGO åpner det seg ubegrensede arkitektoniske muligheter, og sprosser, stilelementer eller kreative detaljer hjelper med å sette riktige aksenter. REHAU SYNEGO er et ideelt valg både for nybygg og for rehabilitering og oppussing.
![]() |
![]() |
SYNEGO gir maksimal fleksibilitet. Du får et vindussystem med ytre eller midtre tetninger og en Uf-verdi på ≤ 1,0 W/m²K. Monteringsdybden på 80 mm er optimal for energieffektive trelags glasspakker. Takket være et bredt utvalg av profiler samt mange farger og former kan ulike installasjonsløsninger i både nybygg og rehabilitering oppfylle alle krav.
- Uf opptil 1,0 W/m²K med anslagstetning og midtetetning
- Antall kamre – karm: 7 kamre / ramme: 6 kamre
- To- eller tretetningssystem
- Trippelglass opptil 51 mm tykkelse (Ug 0,5)
- Lydisolasjon: opptil Rw,p = 46 dB
- Bred profilpalett – inkludert utvendige og aluminiumsbekledninger
- Slanke profiler med synlig bredde på 117 mm
- Rasjonelt lagersortiment: ett system – to tetningsvarianter
- Overflate High-Definition-Finishing (HDF): høy kvalitet, svært glatt og lett å vedlikeholde
- Miljøvennlig – resirkulerbar
REHAU ARTEVO
REHAU ARTEVO - er et moderne profilsystem for PVC-vinduer, utviklet for maksimal energieffektivitet, styrke og design. Det passer for leiligheter, private boliger og kommersielle bygg der varme, stillhet og holdbarhet er viktig.
![]() |
![]() |
Hovedfordeler med REHAU ARTEVO
- høy energieffektivitet — oppfyller moderne krav til energisparing
- forbedret lydisolasjon — komfort selv i støyende områder
- forsterket konstruksjon uten tung stålforsterkning
- moderne utseende — slanke rammer og mer naturlig lys
- motstandsdyktig mot deformasjon og temperatursvingninger
- lang levetid og stabil geometri i mange år
Tekniske spesifikasjoner
- installasjonsdybde: 80 mm
- antall kamre: 6
- glasspakke: opptil 48 mm (dobbel / trippel)
- varmegjennomgangskoeffisient (Uw): opptil ~0,8 W/m²K (avhengig av konfigurasjon)
- tetning: 2–3 pakningsnivåer
- materiale: RAU-FIPRO X (fiberforsterket profil)
- høy stivhet uten tradisjonell stålforsterkning
REHAU ARTEVO-vinduer sikrer et stabilt inneklima hele året: de holder på varmen om vinteren og beskytter mot overoppheting om sommeren. Takket være det innovative materialet tåler profilen høye belastninger og er egnet for brede og høye åpninger.
Vindusprofil fra Rehau i Riga blir stadig oftere den løsningen man ender opp med etter lang tvil. Først ser folk seg rundt, sammenligner og leser anmeldelser. Og så ønsker de bare å lukke vinduet og ikke lenger høre støyen fra gaten.
Trekk, dugg på glasset, kalde vinduskarmer om vinteren, støy fra vei eller gårdsplass – disse problemene opplever både beboere i leilighetsbygg og eiere av private hus. Gamle konstruksjoner mister tettheten, og oppvarmingskostnadene øker. Da oppstår et naturlig spørsmål: Hvilke vinduer løser faktisk problemet, og skaper ikke et nytt?
Rehau vindusprofiler i Riga – varme og stillhet
Rehau vindusprofiler har lenge vært forbundet med tysk kvalitet, men bak dette ligger konkrete fordeler. Når kunder kommer til konsultasjon, spør de som oftest: finnes det en reell forskjell, eller er det bare et merke?
Erfaring viser at forskjellen merkes allerede den første vinteren. Rehau plastvinduer holder bedre på varmen, reduserer støynivået og beholder formen selv ved temperaturendringer. For klimaet i Latvia er dette spesielt viktig – fuktighet, vind og kalde måneder krever en pålitelig konstruksjon.
Selskapet bruker kun kvalitetsprofiler fra Tyskland og Polen, samt tysk beslag. Dette er ikke bare detaljer – det er nettopp de som sikrer jevn åpning, tett lukking og lang levetid.
Enkelt sagt handler Rehau vindusprofiler om komfort. Om følelsen av stillhet om kvelden og fravær av kald luft ved vinduskarmen. Og for mange kunder blir dette et avgjørende argument.
Rehau vinduer – hva du bør vite før du velger
Rehau vinduer finnes i ulike profilsystemer, og det er ikke alltid åpenbart hvilket man bør velge. Noen ser kun på pris, andre på antall kamre. Men det er ikke nok.
Selskapet starter alltid med spørsmål: hvor ligger objektet, hvilken retning vender vinduene, er det en trafikkert vei i nærheten, hvor viktig er energieffektivitet? Har du også tenkt på hvorfor det er varmt i én leilighet om vinteren, mens man i en annen må bruke ekstra oppvarming?
Valget av system avhenger av behovene. I en leilighetsbygning kan en standard løsning med et godt glass være tilstrekkelig. I et privat hus er maksimal varmeisolasjon og beskyttelse mot vind viktigere.
For å gjøre prosessen enklere anbefaler selskapet å følge en tydelig fremgangsmåte.
3 steg som hjelper deg å velge riktig løsning
- Fastsett prioriteringer – varmeisolasjon, lydisolasjon eller en universell løsning.
- Velg et Rehau profilsystem med hensyn til byggets egenskaper.
- Utfør en profesjonell oppmåling før produksjon.
Selv i hus av samme serie kan målene variere noe. Derfor produseres Rehau vinduer alltid etter den konkrete åpningen, og tas ikke fra lager. Denne tilnærmingen forebygger skjevheter og problemer i fremtiden.
Hvorfor selskapet Logi24 er en pålitelig partner
Rehau vindusprofiler krever ikke bare salg, men profesjonell oppfølging. Selskapet Logi24 har vært på markedet i 31 år og organiserer prosessen slik at kunden føler seg trygg i alle faser.
Her begrenser man seg ikke til kun rådgivning. Det tilbys en komplett tjeneste – hjelp med valg, oppmåling, produksjon, montering og oppfølging etter installasjon. Det brukes kun miljøvennlige materialer, tyske og polske profiler samt tysk beslag.
Hovedmålet er ikke et engangssalg, men en fornøyd kunde. Derfor kommer mange etter anbefaling fra venner og bekjente. Har du lagt merke til hvor viktig det er å høre en ærlig vurdering før et stort kjøp?
Selskapet satser på kvalitet i alle ledd – fra utstyr til teamets arbeid. Dette gjør det mulig å tilby Rehau plastvinduer til en optimal pris uten kompromisser på pålitelighet.
Er det verdt å velge Rehau vindusprofil
Rehau vindusprofil i Riga er en løsning for dem som ønsker varme, stillhet og lang levetid uten unødvendige bekymringer. Det passer både for leiligheter og private hus.
Rehau plastvinduer bidrar til å redusere varmetap, forbedre lydisolasjonen og øke det generelle komfortnivået. Med korrekt oppmåling og montering varer resultatet i mange år.
Hvis du planlegger å bytte vinduer eller fortsatt vurderer alternativer, bør du starte med en konsultasjon og en nøyaktig beregning. Dette hjelper deg å forstå budsjettet og velge det optimale systemet.
Er du klar til å ta steget mot et varmere og roligere hjem? Send inn en forespørsel på nettsiden eller bestill en tilbakeringing – spesialistene vil hjelpe deg med å velge riktig løsning og svare på alle spørsmålene dine.





